
Die Wohnungen
Bei dem Objekt Lindemannstr.26 handelt es sich um eine klassizistische Stadtvilla mit Sandsteinfassade in 5-geschossiger Bauweise. Das gesamt Objekt wurde kernsaniert, selbst der Innenputz wurde komplett entfernt und neu aufgetragen. Das Haus wurde ursprünglich zur Eigennutzung konzipiert, dann jedoch im Laufe des Jahres 2012 komplett möbliert und wird jetzt möbliert vermietet. Das Objekt verfügt über Marmor-Granitbäder und entsprechende Gästebäder, Marmorfußböden, bzw. hochwertiges Parkett, Fußbodenheizung, begehbare Kleiderschränke, Einbautresore, mehrere offene Kamine, hochwertige Einbauküchen, Terrassen, Balkone und einen hochwertigen Naßbereich mit Sauna im Keller.
Wohnung EG-Gartenbereich (77,8m²)
Diese Einheit ist ideal geeignet für eine Einzelperson oder ein junges Paar. Die Wohnung hat zwei sehr großzügige Räume (Wohnzimmer und Schlafzimmer) eine kleine Küche und ein kleines Bad. Die Wohnung hat einen kleinen Garten, der vom Wohnzimmer aus betreten wird. Das Wohnzimmer ist mit elektrischen Jalousien ausgestattet, hat Kabel TV Internet (50Mbit) verfügt über dimmbare Einbauleuchten und hat ein kombiniertes Sofa/Schlafsofa auf dem noch ggfs ein Gast übernachten kann. An das Schlafzimmer schließt sich ein sehr großer begehbarer Kleiderschrank an. Die Küche ist klein aber mit allen Geräten, wie Kühl Gefrierschrank, Waschtrockner, Geschirrspüler etc. ausgestattet. Das Duschbad ist ebenfalls klein und funktionell – hat jedoch keine Wanne.
Wohnung im EG

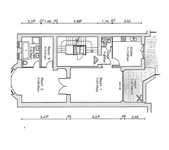
Wohnung 1.OG (101,89m²)
Diese helle, lichtdurchflutete Wohnung mit hohen Decken (Deckenhöhe3,25m) liegt im 1.0G und wurde 2010/11 traumhaft kernsaniert. Sie betreten die Wohnung über einen kleinen Eingangsbereich. Zur linken befindet sich ein Gäste-WC. Dann öffnet sich ein großzügiger Wohn-Essbereich mit einer bodentiefen Fensterfront.
Daran gliedert sich eine Küche mit einer gehobenen-neuen Einbauküche.
Die Küche ist mit allen Geräten, wie Kühl Gefrierschrank, Waschtrockner, Geschirrspüler etc. ausgestattet.
Wohnbereich und Küche haben Zugang zur Loggia und zu einer sensationell großen Terrasse von fast 40m² mit Grünblick.
Durch eine große 2-flügelige Tür erreichen Sie von Wohnzimmer aus den Schlafbereich. Vor dem Bad befindet sich ein Ankleidebereich (begehbarer Kleiderschrank), darauf folgt ein großes Bad mit Badewanne, 2 Waschtischen, Dusche und WC. Das Badezimmer ist mit neuen Villeroy & Boch Objekten im Stil der Jahrhundertwende ausgestattet und wirkt sehr edel.
Zu der Wohnung gehört ein Kellerraum. Ein Wellnessbereich im Souterrain kann
gemeinsam mit den anderen Mietparteien/Eigentümern genutzt werden.
Ausstattung:
Extrem hohe Decken (3,25m) mit Einbaustrahlern, Speziell gealterter(getrommelter) Marmorfußboden mit Fußbodenheizung, Gespachtelte Wände, Luxus Einbauküche mit allen Geräten, Terrasse mit Hartholzbelag
Eckdaten:
Wohnfläche: 101,9 qm
Etage: 1.0G
Baujahr: 1910
Letzte Modernisierung: 2011
Wohnzimmer, Küche, Schlafzimmer, Gästetoilette, Badezimmer, Terrasse und Loggia
Objektzustand: kernsaniert
Qualität der Ausstattung: Luxus
Heizungsart: Gas Zentralheizung
Wohnung 1.OG

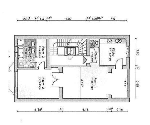
Wohnung 2.OG (91,52m²)
Diese helle, lichtdurchflutete Wohnung- ähnlich der im 1.OG - mit hohen Decken (Deckenhöhe3,25m) liegt im 2.0G und wurde 2010/11 traumhaft kernsaniert. Sie betreten die Wohnung über einen kleinen Eingangsbereich. Zur linken befindet sich ein Gäste-WC. Dann öffnet sich ein großzügiger Wohn-Essbereich mit einer bodentiefen Fensterfront.
Daran gliedert sich eine Küche mit einer gehobenen-neuen Einbauküche.
Die Küche ist mit allen Geräten, wie Kühl Gefrierschrank, Waschtrockner, Geschirrspüler etc. ausgestattet.
Durch eine große 2-flügelige Tür erreichen Sie von Wohnzimmer aus den Schlafbereich. Vor dem Bad befindet sich ein Ankleidebereich (begehbarer Kleiderschrank), darauf folgt ein großes Bad mit Badewanne, 2 Waschtischen, Dusche und WC. Das Badezimmer ist mit neuen Villeroy & Boch Objekten im Stil der Jahrhundertwende ausgestattet und wirkt sehr edel.
Zu der Wohnung gehört ein Kellerraum. Ein Wellnessbereich im Souterrain kann
gemeinsam mit den anderen Mietparteien/Eigentümern genutzt werden.
Ausstattung:
Extrem hohe Decken (3,25m) mit Einbaustrahlern, Echtholz Eichen Parkett/Dielenfußboden mit Fußbodenheizung Gespachtelte Wände, Luxus Einbauküche mit allen Geräten, Terrasse mit Hartholzbelag
Eckdaten:
Wohnfläche: 91,52 qm
Etage: 2.0G
Baujahr: 1910
Letzte Modernisierung: 2011
Zimmeranzahl 2
Wohnzimmer, Küche, Schlafzimmer, Gästetoilette, Badezimmer,
Objektzustand: kernsaniert
Qualität der Ausstattung: Luxus
Heizungsart: Gas Zentralheizung
Wohnung 2.OG

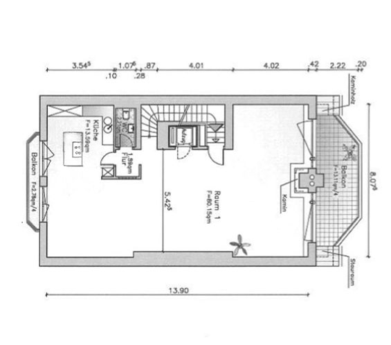
Penthouse (238,68m²)
Diese außergewöhnliche – Topsanierte Penthouse Wohnung erstreckt sich über 3 Ebenen. Sie erreichen die Wohnung bequem über einen Aufzug, der sie mit einer persönlichen Schlüsselschaltung direkt in die Wohnung führt. Es öffnet sich ein großzügiger Wohn-Essbereich mit einem traumhaften Kamin, mittig zum Wohnraum dahinter ein Balkon, einer Luxus-Einbauküche sowie einem Gäste WC.
Eine Treppe führt Sie in die zweite Ebene wo es einen Schlaf-, 2 begehbare Kleiderschränke, ein großes Bad mit mittig liegender Badewanne, 2 Waschtischen, Dusche und separatem WC gibt. Das Schlafzimmer hat ebenfalls einen Kamin sowie einen Balkon.
Die Treppe führt Sie weiter in die dritte Ebene der Wohnung, dem Dachgeschoss. Diese ist als Galerie offen gestaltet, mit großen Fensterflächen und einem atemberaubenden Blick über Düsseldorf.
Zu der Wohnung gehört ein Kellerraum. Ein Wellnessbereich mit Sauna im Souterrain kann gemeinsam mit den anderen Mietparteien/Eigentümern genutzt werden.
Ausstattung:
Echtholz Elchen Parkett, Dielenfußboden mit Fußbodenheizung, Gespachtelte Wände, Luxus-Einbauküche, 2 Kamine, 2 Balkone, Galerie, Luxus-Wellnessbereich, Sauna, Aufzug innerhalb des Hauses bis in die Wohnung.
Eckdaten:
Zimmeranzahl: 5
Wohnfläche: 238,68 qm
3. OG (Wohnzimmer, Küche und Gästetoilette
4. OG (Schlafbereich mit begehbaren Kleiderschränken, Kamin und Badezimmer
5.OG (Arbeitsbereich und ggfs. Gäste/Kinder-bereich)
Baujahr: 1910
Letzte Modernisierung: 2011
Objektzustand: kernsaniert
Qualität der Ausstattung: Luxus
Heizungsart: Gas Zentralheizung
Penthouse






















































